戸建Property information
堀江町(ミサワホームの注文住宅)売出し
堀江町にて中古住宅の売出しです。
・令和5年6月築
・ミサワホームの注文住宅
・駐車並列2台可
・太陽光設備あり
・蓄電池あり
・日当たり通風良好
・閑静な住宅地
・空家のためすぐにご案内できます
お問い合わせお待ちしております。
| 所在地 | 松山市堀江町 |
|---|---|
| 交通 | 予讃線「堀江」駅 徒歩7分 |
| 物件種目 | 中古戸建 |
| 価格 | 3,180万円 | ||
|---|---|---|---|
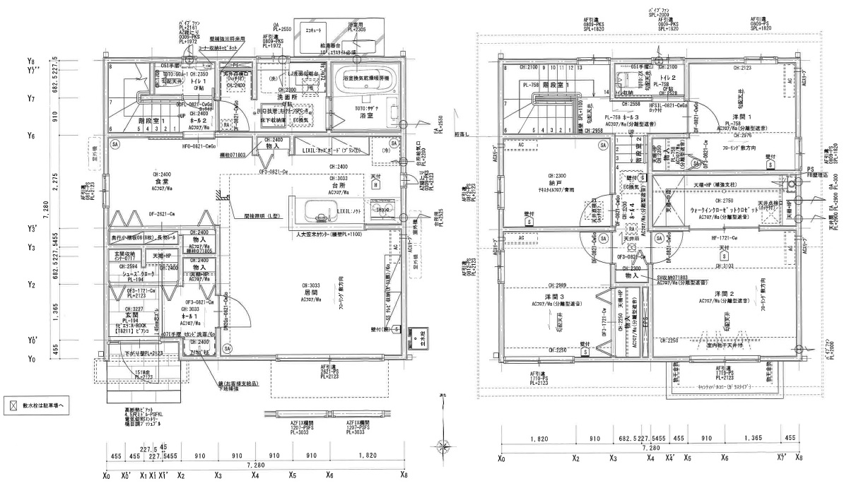
| 間取り | 3LDK+WIC | 建物面積 | 105.16m2 |
|---|---|---|---|
| 土地面積 | 148.67m2 | ||
| 築年月 | 2023年6月 | リフォーム履歴 | |
| 駐車場 | あり(並列2台) | 建物構造 | 木造 |
| 土地権利 | 所有権 | 都市計画 | 市街化区域 |
| 用途地域 | 第一種住居地域 | 接道状況 | 南側3.9m(幅員5.3m)、西側5.3m(幅員5.3m) 開発道路 |
| 建ぺい率 | 60% | 容積率 | 200% |
| 地目 | 宅地 | 地勢 | 平坦 |
| バルコニー | あり(南側) | ||
| 施工会社 | ミサワホーム | ||
| 小学校区 | 堀江小学校 | 中学校区 | 内宮中学校 |
| 条件等 | 現況有姿 | ||
|---|---|---|---|
| 現況 | 空家 | 引渡し | 相談 |

























