成約済み物件Property information
フェリスコート三津 6階
・お手頃価格
・2020年6月クロス一部、敷込カーペット一部張替え済
・室内綺麗に使用されております。
居住中物件ですがご内覧可能です。
お気軽にお問合せくださいませ。
| 所在地 | 松山市三津2丁目12-27 |
|---|---|
| 交通 | 伊予鉄高浜線「三津」駅まで徒歩約8分 |
| 物件種目 | 中古マンション |
| 管理費等 | 月額4,800円 | 修繕積立金 | 月額6,200円 |
|---|
| 建物名・部屋番号 | 6階 | ||
|---|---|---|---|
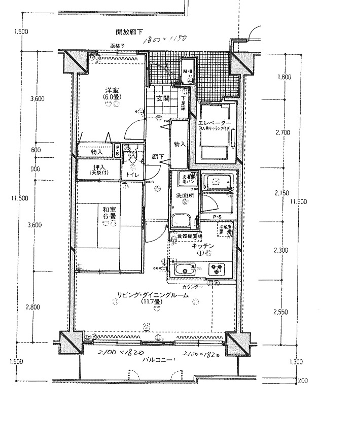
| 間取り | 2LDK | ||
| 土地面積 | 1659.80㎡ | 私道負担面積 | 62.47㎡(壁芯) |
| 建物構造 | 空有(立体駐車場、高さ制限等有) | ||
| 土地権利 | SRC造 | ||
| 用途地域 | 市街化区域 | 接道状況 | 商業地域 |
| 容積率 | 80% | ||
| 地目 | 400% | ||
| バイク置き場 | あり(9.20㎡」) | ||
| バス・トイレ | 三津浜小学校 |
|---|---|
| キッチン | 三津浜中学校 |
| 物件番号 | 室内居住中 | 仲介手数料 | 相談 |
|---|



















